Studio 3A

AD - Countryside Retreat

Sustainability strategies

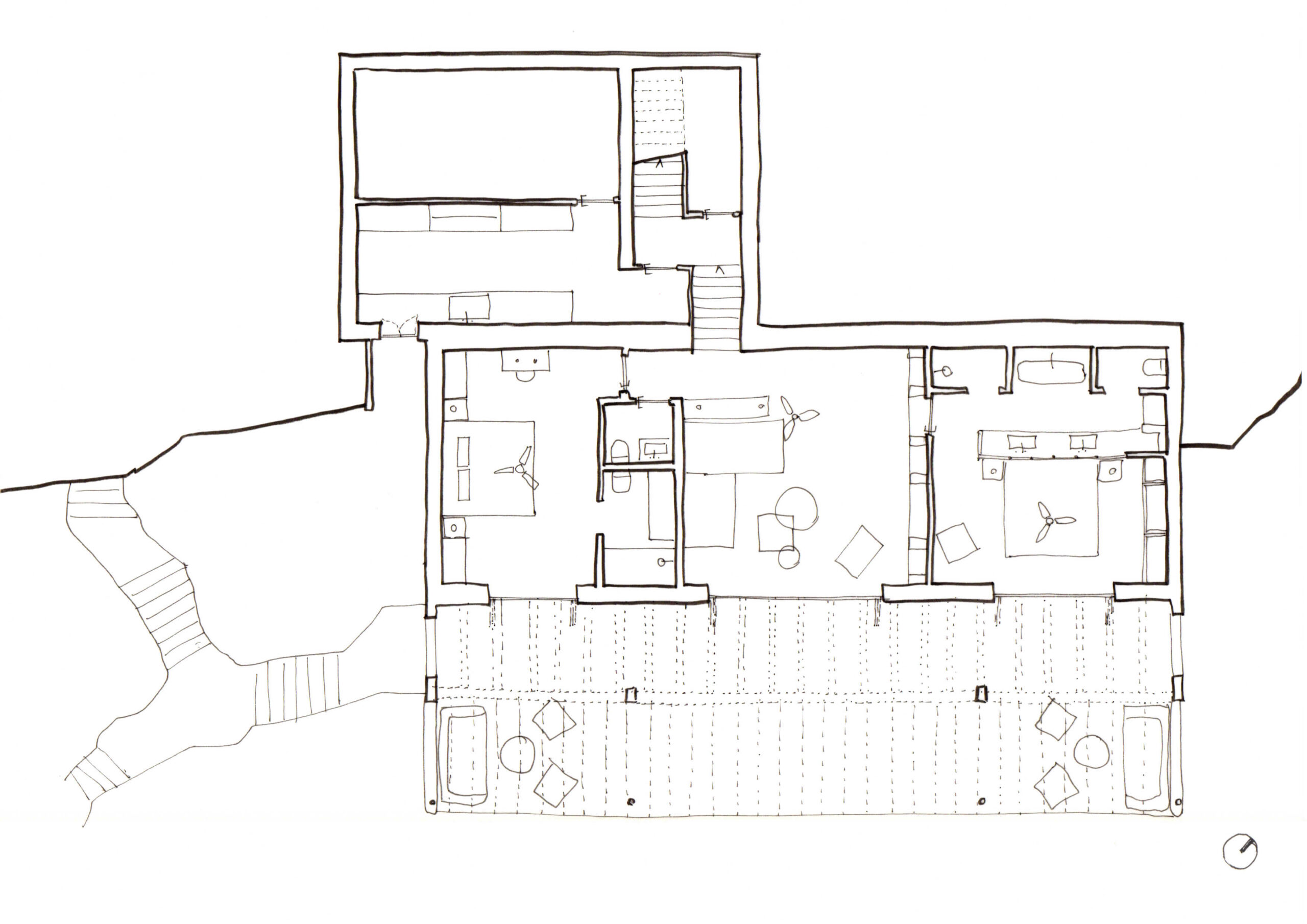
The AD Countryside Retreat brings together two complementary projects — the Countryside Hotel and the Housing units — set within the same rural landscape of Alentejo. Conceived as part of a wider vision for sustainable living and tourism, the ensemble integrates hospitality and dwelling in a way that is both respectful of heritage and deeply attuned to climate.

The Countryside Hotel (425 m²) is a new construction, while the Housing (160 m²) transforms an existing structure through careful reconstruction. Together, they share a design language of restraint and authenticity, underpinned by rigorous sustainability strategies: limewash paint, cork insulation, low-E double glazing, thermally treated wood, and energy systems powered by photovoltaic and solar panels. Passive principles guide the architecture, with pergolas, insulated shutters, and thoughtful orientation ensuring comfort throughout the year.

Rooted in the vernacular landscape, the project combines contemporary design with material honesty, reusing and reinterpreting traditional elements while minimising environmental impact. Once completed, the retreat will stand as a model of how architecture can harmonise hospitality, housing, and sustainability in rural Portugal.

Credits for renders:
Maytedesign 3D

2021

Cercal do Alentejo, Santiago do Cacém

425 square meters of construction

Under construction