Studio 3A

Detailed Drawings

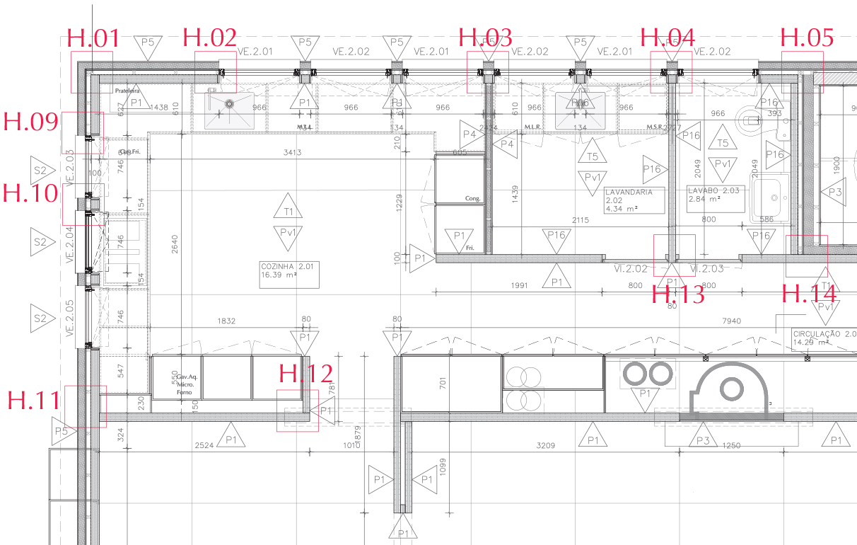
The working drawings, or, projecto de execução, consists of a set of written and drawn elements at a finer scale, to be sent to the contractor for tender & construction. It includes all details designed in liaison and coordination with the engineering team. The drawings are normally in the form of general arrangement plans, elevations, floor plans, foundation plans, section views, electrical plans, joinery maps, window maps, construction and architectural details at various scales for impeccable construction execution. This is the bigger bulk of the architect’s work: drawings to envision the architectural elements in the building before construction starts.

Below you can see an example of the detail we go to in a floorplan in the working drawings.