Studio 3A

AF - Countryside Hotel

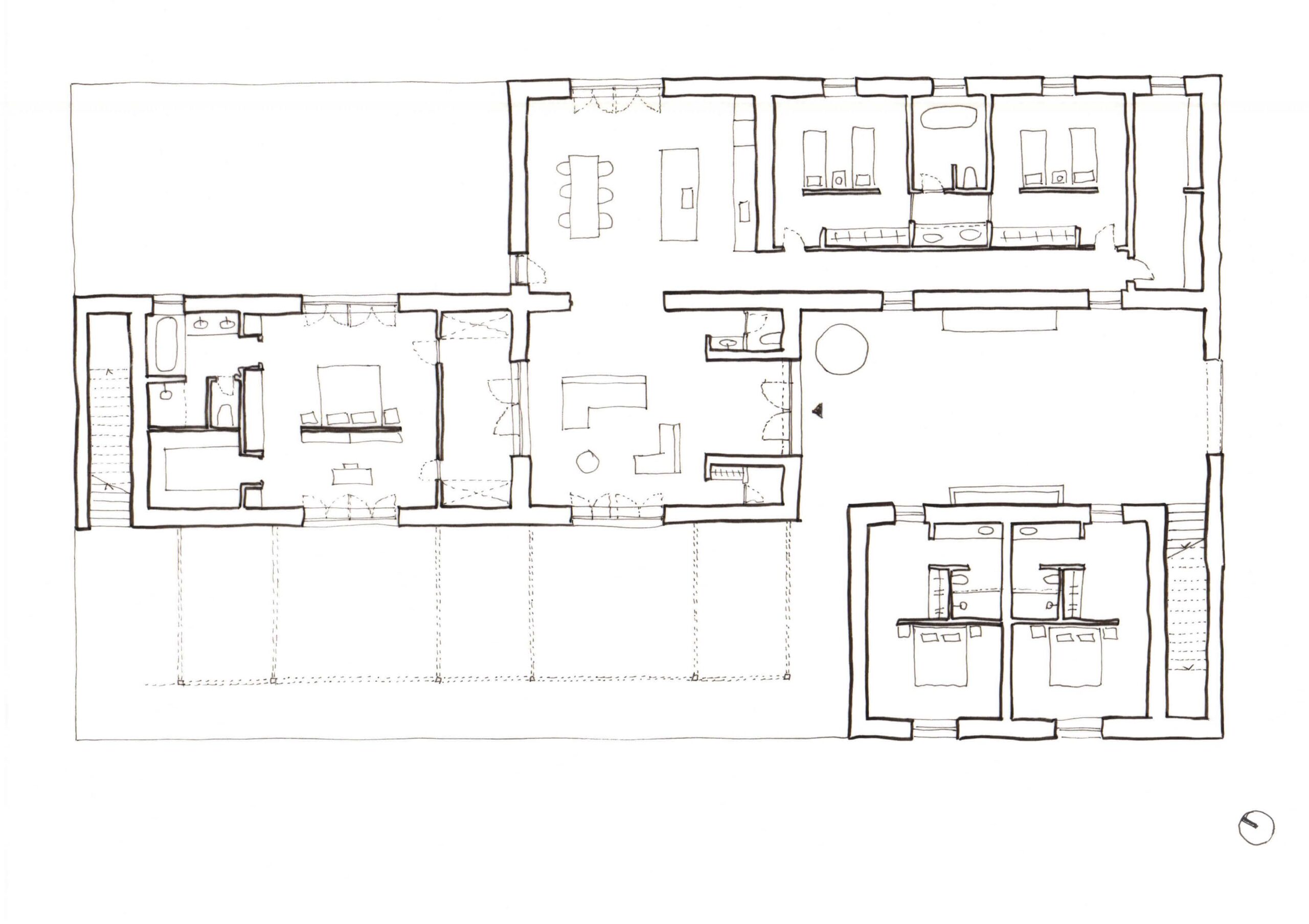
Sustainability strategies

Thorough study on the climate and location, orientation, views, wind, & sunpath. Passive and low energy architecture using local materials such as rammed earth (Taipa) and compressed earth bricks (CEB); using thermal mass as an energetic concept. Window to floor ratio calculated for efficient natural lighting without overheating in summer. External shading with pergolas and insulated shutters, and allowance for natural cross ventilation in the interior. Implementation of PV panels for active energy and solar panels for water heating.

2020

Melides, Grândola

403 square meters of construction

Under Construction